BlueSpirit maar als ik het zo zie, is dat niet van toepassing toch?
Het spoor komt een stuk(je) meer richting Ride TH te liggen. Ik heb wat ingezoomd op de tekeningen en screenshots gemaakt. Altijd leuk om doorheen te neuzen:

Hier de huidige situatie

De nieuwe situatie met spoor dus iets verleg, met de platen boven elkaar is dat wel duidelijk

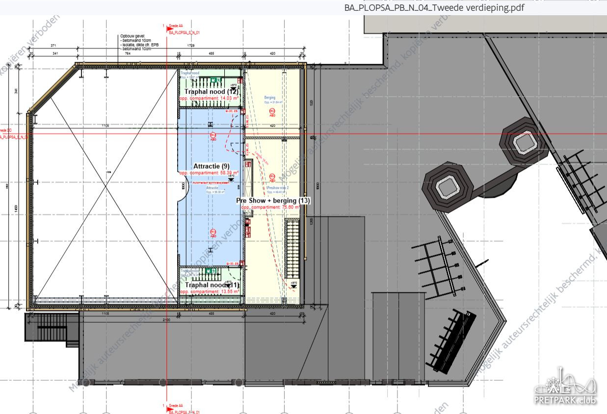
De inkom en attractie, het wordt dus -zoals het Plopsa helaas past- een lage capaciteit attractie met maar 1 filmzaal

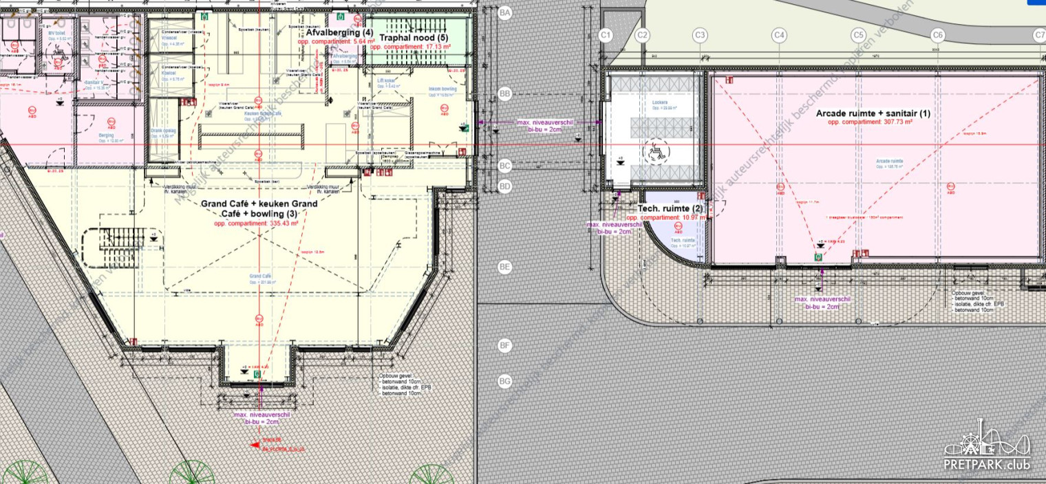
Het grand cafe, gelukkig komt dit terug als vervanger van FC de Kampioenen, vind dat altijd een fijn terras

Arcade en WC-blok, hier zit nu de Panos en een WC blok

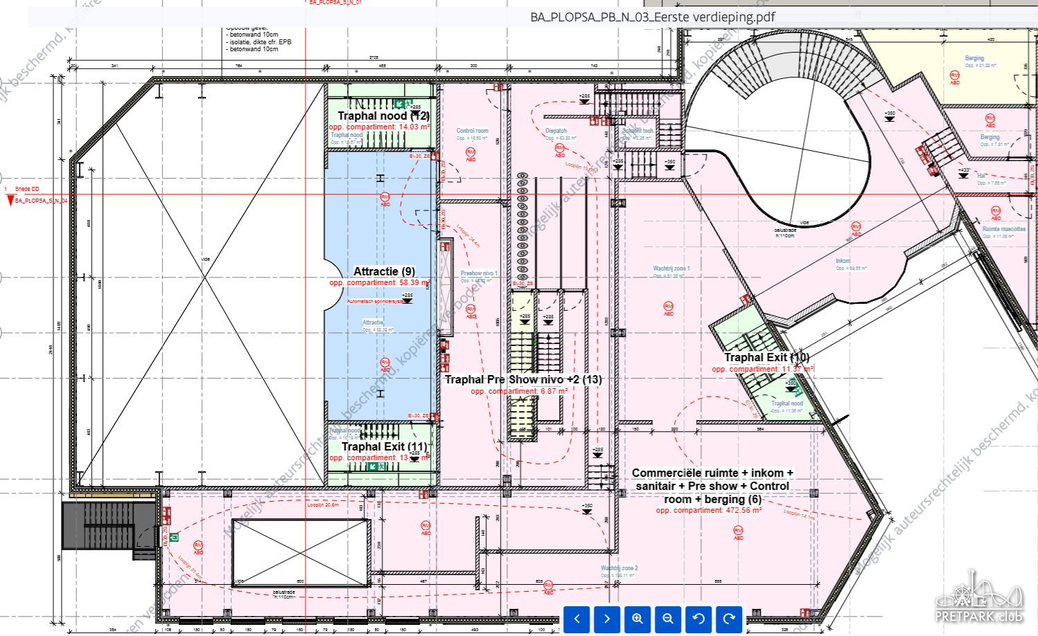
Eerste verdieping, hier zit grotendeels de wachtruimtes en de locatie waar je ge-preseat wordt

Grand cafe met een grote vide en de bowling die zich boven de arcadehal bevind, slim ontwerp

De filmzaal bestaat zoals gebruikelijk uit 3 verdiepingen, heel benieuwd hoe ze deze hoge toren goed weggewerkt krijgen
Al met al ben ik best enthousiast. Vind het jammer dat de verkeerstuin verdwijnt, daar waren de kinderen dol op toen ze kleiner waren. Daarnaast vind ik het jammer dat het maar 1 zaal is en dus zal de capaciteit weer niet over naar huis te schrijven zijn.
Maar ook erg blij dat een sjiek cafe terugkomt omdat ik niet zozeer FC de Kampioenen ga missen maar dit wel een fijne plek was voor een biertje op het terras zo met het levendige plein voor je.