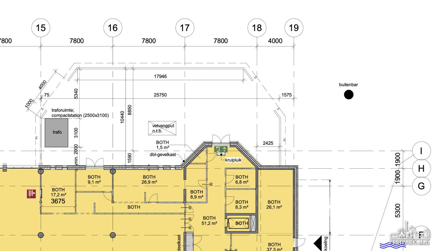
Michael Zo een hotel heeft ook gewoon een flinke plek nodig als back of the house, en dat ze het nu zo gaan wegwerken vind ik wel goed hoor.
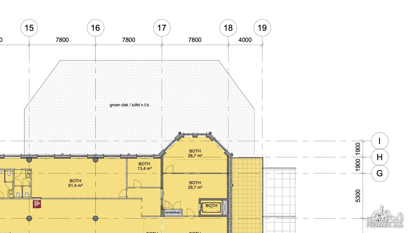
Wat overigens grappig is, is dat deze overkapping altijd al op de originele tekeningen heeft gestaan.
Ik kan me niet herinneren dat we het hier ooit over gehad hebben en ik heb het of al die tijd gemist, of ben na die paar jaar vergeten dat het eerder opgevallen is.

De begane grond met de indeling van de BOTH én de palen zijn zichtbaar die de constructie dragen

Het dak wordt hopelijk een mooi groen dak
Hopelijk hebben ze, nu duidelijk is dat deze overkapping altijd al bedacht is, goed nagedacht hoe dit weg te werken. Ben benieuwd of dit Go-Away-Green wordt met coniferen of iets meer.
Overigens volgt waarschijnlijk achter de Lobby ook een dergelijke overkapping maar dan iets kleiner:
